Export Control
EAR Export Classification: Not subject to the EAR per 15 C.F.R. Chapter 1, Part 734.3(b)(3), except for the following Service Bulletins which are currently published as EAR Export Classification 9E991: SBE70-0992, SBE72-0483, SBE72-0580, SBE72-0588, SBE72-0640, SBE73-0209, SBE80-0024 and SBE80-0025.Copyright
© IAE International Aero Engines AG (2001, 2014 - 2021) The information contained in this document is the property of © IAE International Aero Engines AG and may not be copied or used for any purpose other than that for which it is supplied without the express written authority of © IAE International Aero Engines AG. (This does not preclude use by engine and aircraft operators for normal instructional, maintenance or overhaul purposes.).Applicability
All
Common Information
TASK 72-50-22-200-003-E00 LPT Stage 5 Vane - Examine, Inspection-003
General
This TASK gives the procedure for the inspection of the stage 5 turbine vanes.
Before you do this inspection refer to TASK 72-50-32-200-008 (INSPECTION-008, CONFIG-001)
Fig/item numbers in parentheses in the procedure agree with those used in the IPC.
The policy that is necessary for inspection is given in the SPM TASK 70-20-00-200-501.
All the parts must be cleaned before any part is examined. Refer to TASK 72-50-22-100-000 (CLEANING-000)
All parts must be visually examined for damage, corrosion and wear. Any defects that are not identified in the procedure must be referred to IAE.
The procedure for those parts which must have a crack test is given in Step. Do the crack test before the part is visually examined.
Do not discard any part until you are sure there are no repairs available. Refer to the instructions in Repair before a discarded part is used again or oversize parts are installed.
Parts which should be discarded can be held although no repair is available. The repair of a discarded part could be shown to be necessary at a later date.
All parts must be examined to make sure that all the repairs have been completed satisfactorily.
The practices and processes referred to in the procedure by the TASK numbers are in the SPM.
References
Refer to the SPM for data on these items.
Definitions of Damage, SPM TASK 70-02-02-350-501
Record and Control of the Life of Parts, SPM TASK 70-05-00-220-501
Inspection of Parts, SPM TASK 70-20-00-200-501
Some data on these items is contained in this TASK. For more data on these items refer to the SPM.
Method of Testing for Crack Indications
Chemical Processes
Surface Protection
NOTE
Preliminary Requirements
Pre-Conditions
NONESupport Equipment
| Name | Manufacturer | Part Number / Identification | Quantity | Remark |
|---|---|---|---|---|
| IAE 2M14173 Axial deflection gage | 0AM53 | IAE 2M14173 | 1 off |
Consumables, Materials and Expendables
NONESpares
NONESafety Requirements
NONEProcedure
Clean the parts. Refer to TASK 72-50-22-100-000 (CLEANING-000).
Refer to Repair, VRS4620 TASK 72-50-22-300-150 (REPAIR-150).
Not more than 0.010 in. (0,25 mm) maximum depth.
Refer to Repair, VRS4623 TASK 72-50-22-300-153 (REPAIR-153).
More than in Step but not more than 0.010 in. (0,25 mm) maximum width and 0.079 in. (2,00 mm) maximum length except area A10.
Cracked inner or outer platforms in area A9.
Refer to Repair, VRS4623 TASK 72-50-22-300-153 (REPAIR-153).
Not more than 0.010 in. (0,25 mm) maximum width and 0.079 in. (2,00 mm) maximum length.
Cracked airfoils in areas A1 to A8 except areas A2, A5, A3.1 and A4.1.
Refer to Repair, VRS4623 TASK 72-50-22-300-153 (REPAIR-153).
Not more than 0.010 in. (0,25 mm) maximum width and 0.079 in. (2,00 mm) maximum length on one airfoil only.
Cracked airfoils in areas A2, A5, A3.1 and A4.1.
Do the test for cracks on the part that are given below. Use the applicable penetrant procedure.
PART IDENT TASK/SUBTASK
Stage 5Turbine Vanes
SUBTASK 72-50-22-230-006 Examine the Stage 5 Turbine Vanes for Cracks
Refer to Repair, VRS4621 TASK 72-50-22-300-151 (REPAIR-151).
Damaged or not sufficient coating in areas total less than 1.000 sqin (645,16 sq mm) per vane airfoil.
Refer to Repair, VRS4622 TASK 72-50-22-300-152 (REPAIR-152).
More than in Step.
Damaged or not sufficient coating.
Refer to SPM TASK 70-28-00-280-501 and SPM TASK 70-28-01-280-501.
Do the heat tint test.
Refer to Repair, VRS4622 TASK 72-50-22-300-152 (REPAIR-152) or Repair, VRS4620 TASK 72-50-22-300-150 (REPAIR-150).
Not within the limits.
Blistering, sulphidation.
SUBTASK 72-50-22-220-041 Examine the Airfoil, Inner and Outer Annulus / Gaspath Surfaces of the Stage 5 Turbine Vanes for Coating Damage
Refer to Figure.
Refer to Repair, VRS4620 TASK 72-50-22-300-150 (REPAIR-150) or Repair, VRS4623 TASK 72-50-22-300-153 (REPAIR-153).
Nicked, dented, pitted.
Examine the surface in area A1.
Refer to Repair, VRS4623 TASK 72-50-22-300-153 (REPAIR-153).
Nicked, dented, pitted.
Examine the surface in area A2.
Refer to Repair, VRS4620 TASK 72-50-22-300-150 (REPAIR-150) or Repair, VRS4623 TASK 72-50-22-300-153 (REPAIR-153).
More than in Step.
Nicked, dented, pitted in area A3.1.
Refer to Repair, VRS4620 TASK 72-50-22-300-150 (REPAIR-150) or Repair, VRS4623 TASK 72-50-22-300-153 (REPAIR-153).
Nicked, dented, pitted in area A3.2.
Examine the surface in area A3.
Refer to Repair, VRS4620 TASK 72-50-22-300-150 (REPAIR-150) or Repair, VRS4623 TASK 72-50-22-300-153 (REPAIR-153).
More than in Step.
Nicked, dented, pitted in area A4.1.
Refer to Repair, VRS4620 TASK 72-50-22-300-150 (REPAIR-150) or Repair, VRS4623 TASK 72-50-22-300-153 (REPAIR-153).
Nicked, dented, pitted in area A4.2.
Examine the surface in area A4.
Refer to Repair, VRS4620 TASK 72-50-22-300-150 (REPAIR-150) or Repair, VRS4623 TASK 72-50-22-300-153 (REPAIR-153).
Nicked, dented, pitted.
Examine the surface in area A5.
Refer to Repair, VRS4620 TASK 72-50-22-300-150 (REPAIR-150) or Repair, VRS4623 TASK 72-50-22-300-153 (REPAIR-153).
Nicked, dented, pitted.
Examine the surface in area A6.
Refer to Repair, VRS4623 TASK 72-50-22-300-153 (REPAIR-153).
Nicked, dented, pitted.
Examine the surface in area A7.
Refer to Repair, VRS4620 TASK 72-50-22-300-150 (REPAIR-150) or Repair, VRS4623 TASK 72-50-22-300-153 (REPAIR-153).
Nicked, dented, pitted
Examine the surface in area A8.
Refer to Repair, VRS4620 TASK 72-50-22-300-150 (REPAIR-150) or Repair, VRS4623 TASK 72-50-22-300-153 (REPAIR-153).
More than in Step.
Nicked, dented, pitted.
Examine the surface in area A9.
SUBTASK 72-50-22-220-042 Examine the Stage 5 Turbine Vanes in Area A1 to A9 for Surface Damage
Refer to Repair, VRS4579 TASK 72-50-22-300-128 (REPAIR-128).
Any quantity unbonded from vane.
Unbonded.
Refer to Repair, VRS4579 TASK 72-50-22-300-128 (REPAIR-128).
More than in Step
Rub damged.
SUBTASK 72-50-22-220-043 Examine the Stage 5 Turbine Vanes Inner Honeycomb Seal
Reject.
More than in Step.
Fretted
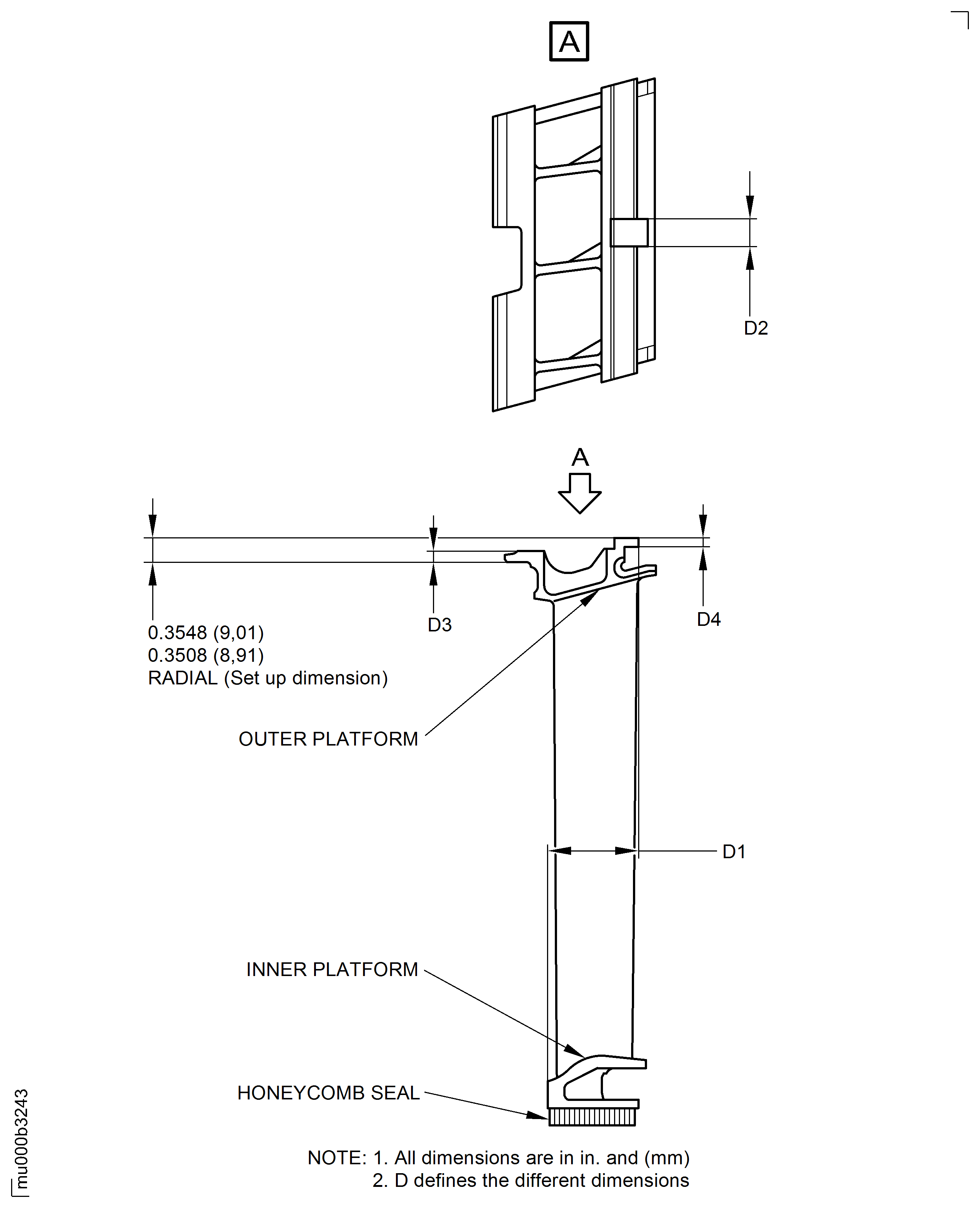
SUBTASK 72-50-22-220-044 Examine the Inner and the Outer Platform End Faces of the Stage 5 Turbine Vanes for Wear
Refer to Figure.
Reject.
Less than in Step.
Measure dimension D1. Use IAE 2M14173 Axial deflection gage 1 off.
SUBTASK 72-50-22-220-045 Examine the Stage 5 Turbine Vanes at Dimension D1 for Distortion
Refer to Figure.
Refer to Repair, VRS4173 TASK 72-50-22-300-048 (REPAIR-048).
Less than in Step.
Worn, measure dimension D2.
SUBTASK 72-50-22-220-046 Examine the Stage 5 Turbine Vanes at Dimension D2 for Wear
Refer to Figure.
Refer to Repair, VRS4623 TASK 72-50-22-300-153 (REPAIR-153).
Less than in Step but not less than 0.135 in. (3,43 mm).
Worn, measure dimension D3.
SUBTASK 72-50-22-220-047 Examine the Stage 5 Turbine Vanes at Dimension D3 for Wear
Refer to Figure.
Refer to Repair, VRS4623 TASK 72-50-22-300-153 (REPAIR-153).
Less than in Step but not less than 0.109 in. (2,78 mm).
Worn, measure dimension D4.
SUBTASK 72-50-22-220-048 Examine the Stage 5 Turbine Vanes at Dimension D4 for Wear
Figure: Examine the stage 5 turbine vanes
Examine the stage 5 turbine vanes

Figure: Examine the stage 5 turbine vanes
Examine the stage 5 turbine vanes

