Export Control
EAR Export Classification: Not subject to the EAR per 15 C.F.R. Chapter 1, Part 734.3(b)(3), except for the following Service Bulletins which are currently published as EAR Export Classification 9E991: SBE70-0992, SBE72-0483, SBE72-0580, SBE72-0588, SBE72-0640, SBE73-0209, SBE80-0024 and SBE80-0025.Copyright
© IAE International Aero Engines AG (2001, 2014 - 2021) The information contained in this document is the property of © IAE International Aero Engines AG and may not be copied or used for any purpose other than that for which it is supplied without the express written authority of © IAE International Aero Engines AG. (This does not preclude use by engine and aircraft operators for normal instructional, maintenance or overhaul purposes.).Applicability
All
Common Information
TASK 72-50-22-300-131 Replace The Honeycomb Seal Segment On The Outer Buttress Of The Stage 6 Turbine Vane, Repair-131 (VRS4582)
Material of component
PART IDENT | IAE SYMBOL | MATERIAL |
|---|---|---|
Stage 6 turbine vane | Inconel 713 | |
Honeycomb seal segment | Hastelloy X |
General
Price and availability - none
The practices and processes referred to in the procedure by the TASK numbers are in the SPM.
Make sure that the necessary cleaning and inspection procedures are done before this repair.
NOTE
NOTE
NOTE
Preliminary Requirements
Pre-Conditions
NONESupport Equipment
| Name | Manufacturer | Part Number / Identification | Quantity | Remark |
|---|---|---|---|---|
| Turning lathe | LOCAL | Turning lathe | ||
| Grinding Machine | LOCAL | Grinding Machine | ||
| Belt grinder | LOCAL | Belt grinder | ||
| Spot welding machine | LOCAL | Spot welding machine | ||
| IAE 3M14202 Grinding/turning fixture | 0AM53 | IAE 3M14202 | 1 off | |
| IAE 3M14225 Spot welding fixture | 0AM53 | IAE 3M14225 | 1 off | |
| IAE 3M14220 Cross slide table | 0AM53 | IAE 3M14220 | 1 off | |
| IAE 3M14221 Electrode guide | 0AM53 | IAE 3M14221 | 1 off | |
| IAE 3M14222 Electrode holder | 0AM53 | IAE 3M14222 | 1 off | |
| IAE 3M14223 Universal joint electrode | 0AM53 | IAE 3M14223 | 1 off |
Consumables, Materials and Expendables
| Name | Manufacturer | Part Number / Identification | Quantity | Remark |
|---|---|---|---|---|
| CoMat 03-148 BRAZING FILLER POWDER | LOCAL | CoMat 03-148 | ||
| CoMat 03-227 WHITE STOP OFF | D3309 | CoMat 03-227 | ||
| CoMat 03-249 BRAZING FILLER MATERIAL,Ni-BASE | LOCAL | CoMat 03-249 | ||
| CoMat 03-290 BINDER, BRAZING ALLOY | LOCAL | CoMat 03-290 |
Spares
| Name | Manufacturer | Part Number / Identification | Quantity | Remark |
|---|---|---|---|---|
| SEAL SEGMENT - HONEYCOMB | 0AM53 | 3A3132 | 1 | FIG/ITEM 01-198 |
| SEAL,SEGMENT HONEYCOMB | 0AM53 | 3A3140 | 1 | FIG/ITEM 01-198 |
Safety Requirements
NONEProcedure
Keep material removal to a minimum.
Remove the damaged honeycomb seal segment fully.
Remaining braze thickness not more than 0.005 in. (0.13 mm) is permitted.
Machine off the worn honeycomb seal segment.
SUBTASK 72-50-22-320-065 Machine the Damaged Honeycomb Seal Segment
Refer to SPM TASK 70-11-03-300-503.
Aqueous cleaning
SUBTASK 72-50-22-110-288 Clean the Stage 6 Turbine Vane
Refer to SPM TASK 70-23-02-230-501.
Cracks are not permitted.
Do the test for cracks.
SUBTASK 72-50-22-230-202 Examine the Stage 6 Turbine Vane for Cracks
Replacement honeycomb is supplied longer than necessary.
Use Belt grinder.
Cut the new honeycomb seal segment to length.
SUBTASK 72-50-22-310-133 Prepare the Honeycomb Seal Segment for Brazing
Refer to SPM TASK 70-11-03-300-503.
Use clean gloves when you touch the clean parts.
Aqueous cleaning
SUBTASK 72-50-22-110-289 Clean the Stage 6 Turbine Vane and the New Honeycomb Seal Segment
NOTE
If CoMat 03-148 BRAZING FILLER POWDER is used, do not perform Step.Install the cross slide table onto the spot welding machine.
Install the electrode holder onto the spot welding machine.
Make sure that the electrode insert with the mark "OUTER" (part of the electrode swivel) is installed.
Install the electrode swivel onto the electrode holder.
Install the electrode guide onto the cross slide table.
Install the spot welding fixture onto the electrode guide.
Make sure that the stage 6 turbine vane is installed correctly against the stop plates (parts of the spot welding fixture).
Attach the stage 6 turbine vane onto the spot welding fixture.
Align the honeycomb seal segment.
Put the honeycomb seal segment onto the stage 6 turbine vane.
Use short time and low weld amperage to safety the honeycomb seal segment without damage.
Start to weld in the middle and continue to the outer sides.
Resistance weld the honeycomb seal segment.
Apply white stop off around the edges of the stage 6 turbine vane.
Refer to SPM TASK 70-31-07-310-501. Use process 2.
Brazing time is 30 minutes maximum.
Heating and cooling rates are optional.
Vacuum braze
SUBTASK 72-50-22-310-134 Braze in the New Honeycomb Seal Segment
Refer to SPM TASK 70-11-03-300-503.
Aqueous cleaning
SUBTASK 72-50-22-110-290 Clean the Stage 6 Turbine Vane
Refer to SPM TASK 70-31-07-310-501.
Do the gravity leak test.
No unbrazed honeycomb cells around the edges of the honeycomb seal segment are permitted.
The minimum space between the unbonded areas of more than 0.063 sq in. (40.65 sq mm) should be 1.000 in. (25.40 mm).
The honeycomb wall thickness must not be increased by more than 0.001 in. (0.03 mm) in the area above the braze fillet.
Refer to SPM TASK 70-31-07-310-501 other than the limits that follows:
Acceptance limits
SUBTASK 72-50-22-210-082 Examine the Brazed Honeycomb Seal Segment
Grind the honeycomb seal segment.
Refer to SPM TASK 70-31-07-310-501.
Deburr the honeycomb seal segment.
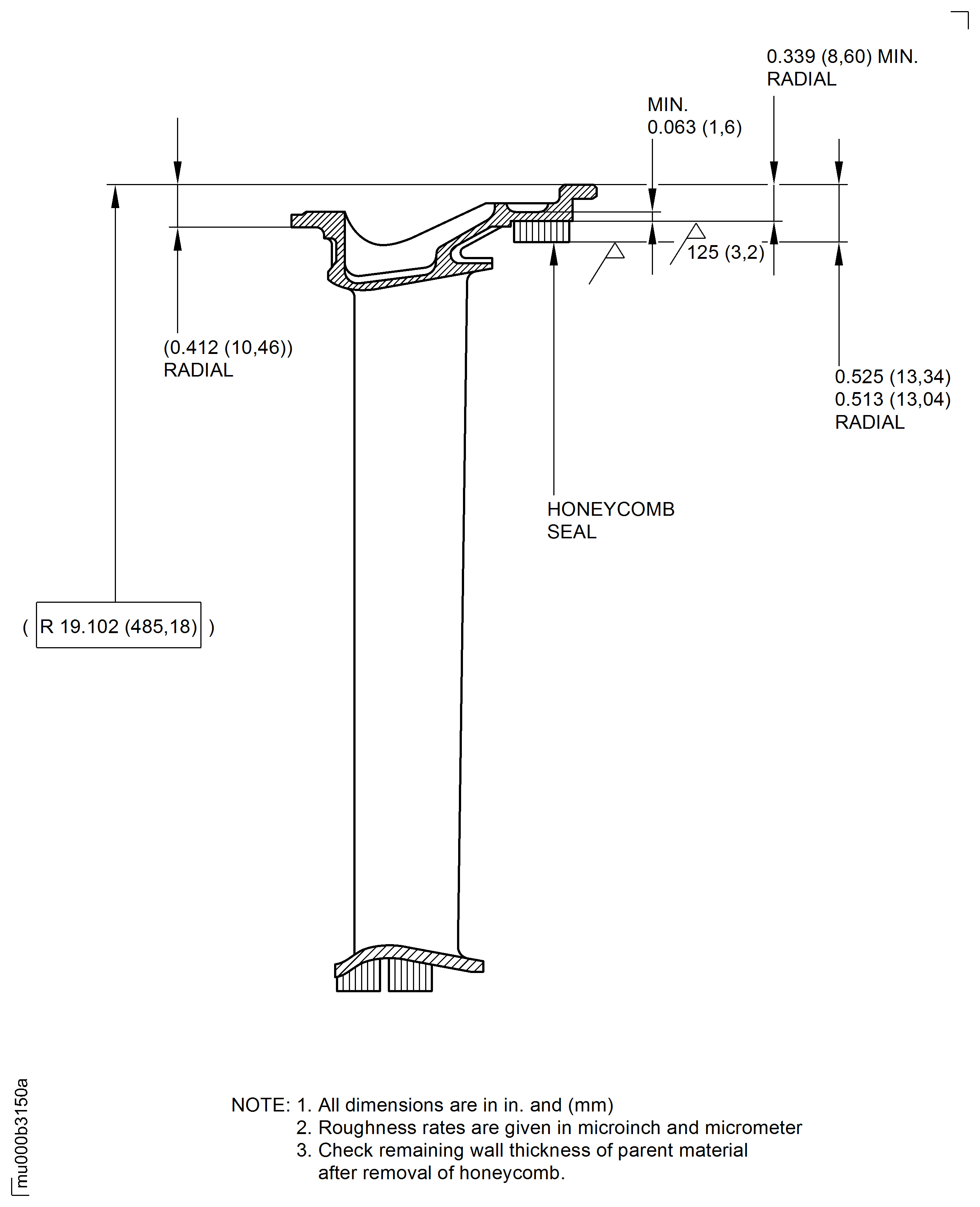
SUBTASK 72-50-22-320-066-001 Machine the Honeycomb Seal Segment
Refer to Figure.
NOTE
This SUBTASK is necessary if PN 3A3140 (without cell height stock material) is used.Grind the honeycomb seal segment.
Refer to SPM TASK 70-31-07-310-501.
Deburr the honeycomb seal segment.
SUBTASK 72-50-22-320-066-002 Machine the Honeycomb Seal Segment
Refer to SPM TASK 70-11-03-300-503.
Aqueous cleaning
SUBTASK 72-50-22-110-291 Clean the Stage 6 Turbine Vane
Do a dimensional inspection.
Refer to SPM TASK 70-31-07-310-501.
Do a visual inspection.
SUBTASK 72-50-22-220-375 Do the Post Repair Inspection
Refer to SPM TASK 70-09-00-400-501.
Electrolytically etch or vibropeen VRS4582 adjacent to the part number.
SUBTASK 72-50-22-350-124 Make a Mark to Identify the Repair
Figure: Repair Details and Dimensions
Repair Details and Dimensions

Figure: Repair Details and Dimensions
Repair Details and Dimensions

