Export Control
EAR Export Classification: Not subject to the EAR per 15 C.F.R. Chapter 1, Part 734.3(b)(3), except for the following Service Bulletins which are currently published as EAR Export Classification 9E991: SBE70-0992, SBE72-0483, SBE72-0580, SBE72-0588, SBE72-0640, SBE73-0209, SBE80-0024 and SBE80-0025.Copyright
© IAE International Aero Engines AG (2001, 2014 - 2021) The information contained in this document is the property of © IAE International Aero Engines AG and may not be copied or used for any purpose other than that for which it is supplied without the express written authority of © IAE International Aero Engines AG. (This does not preclude use by engine and aircraft operators for normal instructional, maintenance or overhaul purposes.).Applicability
All
Common Information
TASK 75-24-49-200-102 LPT ACC Periseal Housing and Periseal Seal Ring - Examine, Inspection-002
General
This TASK gives the procedure for the inspection of the periseal housing and periseal seal ring. For the other LP turbine ACC manifold and tube parts, refer to Inspection-000 TASK 75-24-49-200-100.
Fig/item numbers in parentheses in the procedure agree with those used in the IPC.
The policy that is necessary for inspection is given in SPM TASK 70-20-01-200-501.
All parts must be cleaned before any part is examined. Refer to Cleaning-000 TASK 75-24-49-100-100.
All parts must be visually examined for damage, corrosion and wear. Any defects that are not identified in the procedure must be referred to IAE.
Do not discard any part until you are sure there are no repairs available. Refer to the instructions in Repair before a discarded part is used again or oversize parts are installed.
Parts which should be discarded can be held although no repair is available. The repair of a discarded part could be shown to be necessary at a later date.
All parts must be examined to make sure that all the repairs have been completed satisfactorily.
The practices and processes referred to in the procedure by the TASK numbers are in the SPM.
NOTE
References
Refer to the SPM for data on these items.
Definition of Damage, SPM TASK 70-02-02-350-501.
Record and Control of the Lives of Parts, SPM TASK 70-05-00-220-501.
Inspection of Parts, SPM TASK 70-20-01-200-501.
Some data on these items is contained in this TASK. For more data on these items refer to the SPM.
Method of Testing for Crack Indications
Chemical Processes
Surface Protection
Preliminary Requirements
Pre-Conditions
NONESupport Equipment
| Name | Manufacturer | Part Number / Identification | Quantity | Remark |
|---|---|---|---|---|
| IAE 2M14187 Inspection gage | 0AM53 | IAE 2M14187 | 1 |
Consumables, Materials and Expendables
NONESpares
NONESafety Requirements
NONEProcedure
Reject
Cracked
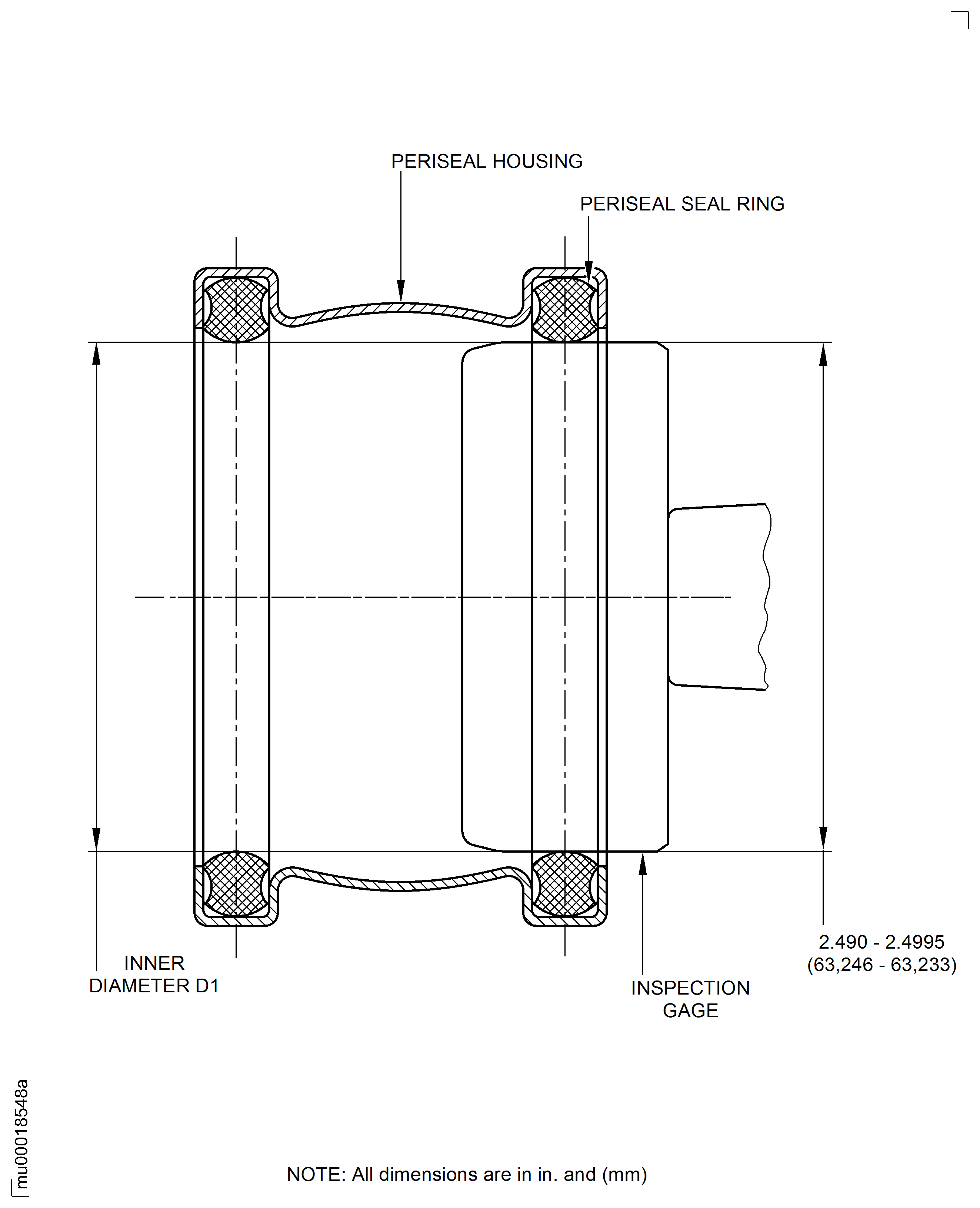
Visually examine the periseal housing for cracks.
SUBTASK 75-24-49-230-002 Examine the Periseal Housing (01-540) for Cracks
Refer to Figure.
Reject
Broken, torn or flaked, caused by mechanical damage or engine running
Examine the surface fully.
Reject
Other than in Step
Examine the inner diameter D1 of the periseal seal ring. Use the IAE 2M14187 Inspection gage 1 off.
NOTE
Periseal seal ring must be located in the periseal housing.
SUBTASK 75-24-49-220-055 Examine the Periseal Seal Ring (01-530)
Figure: Inspection of the Periseal Housing and Periseal Seal Ring
Inspection of the Periseal Housing and Periseal Seal Ring

