Export Control
EAR Export Classification: Not subject to the EAR per 15 C.F.R. Chapter 1, Part 734.3(b)(3), except for the following Service Bulletins which are currently published as EAR Export Classification 9E991: SBE70-0992, SBE72-0483, SBE72-0580, SBE72-0588, SBE72-0640, SBE73-0209, SBE80-0024 and SBE80-0025.Copyright
© IAE International Aero Engines AG (2001, 2014 - 2021) The information contained in this document is the property of © IAE International Aero Engines AG and may not be copied or used for any purpose other than that for which it is supplied without the express written authority of © IAE International Aero Engines AG. (This does not preclude use by engine and aircraft operators for normal instructional, maintenance or overhaul purposes.).Applicability
All
Common Information
TASK 72-41-21-300-081 HPC Stage 11 Case - Replace The Borescope Access Port And/or Rivets, Repair-081 (VRS6352)
Material of component
PART IDENT | SYMBOL | MATERIAL |
|---|---|---|
HP Compressor Stage 11 Compressor case Assembly | QRK or QTX | Nickel Cobolt Steel |
Borescope access port | EAK | Corrosion Resistant Steel |
Rivet | Heat Resistant Alloy |
General
This Repair must only be done when the instruction to do so is given in 72-41-21 Inspection.
When any of the rivet(s) which secure the borescope access port require to be replaced go to Step.
When the borescope access port requires to be replaced go to SUBTASK 72-41-21-350-190.
The practices and processes referred to in the procedure by the TASK/SUBTASK numbers are in the SPM.
Price and Availability
Refer to International Aero Engines.
Related repairs - none
NOTE
NOTE
Preliminary Requirements
Pre-Conditions
NONESupport Equipment
| Name | Manufacturer | Part Number / Identification | Quantity | Remark |
|---|---|---|---|---|
| Chemical cleaning equipment | LOCAL | Chemical cleaning equipment | ||
| Vertical drilling machine | LOCAL | Vertical drilling machine | ||
| Workshop inspection equipment | LOCAL | Workshop inspection equipment | ||
| Dial indicator | LOCAL | Dial indicator | ||
| Drill | LOCAL | Drill | ||
| Standard workshop equipment | LOCAL | Standard workshop equipment | ||
| Penetrant Crack Test Equipment | LOCAL | Penetrant crack test equipment | ||
| Cold squeeze riveting equipment | LOCAL | Cold squeeze riveting equipment | ||
| Vibrating marking pencil | LOCAL | Vibrating marking pencil |
Consumables, Materials and Expendables
| Name | Manufacturer | Part Number / Identification | Quantity | Remark |
|---|---|---|---|---|
| CoMat 02-121 TEMPORARY MARKER PENCIL/CRAYON | IE304 | CoMat 02-121 | ||
| CoMat 02-122 TEMPORARY MARKER PENCIL/CRAYON | K6835 | CoMat 02-122 | ||
| CoMat 06-022 FLUORESCENT PENETRANT (POST-EMULSIFIED ULTRA HIGH SENSITIVITY) | LOCAL | CoMat 06-022 |
Spares
| Name | Manufacturer | Part Number / Identification | Quantity | Remark |
|---|---|---|---|---|
| Rivet, solid CSK head | AS16688 | 4 A/R | ||
| Rivet, solid CSK head | AS16729 | 4 A/R | (oversize) | |
| Boss, borescope access port | 6A4187 | 1 A/R | (Assy A) | |
| Boss, borescope access port | 6A5870 | 1 A/R | (Assembly B, Assembly C and Assembly D) |
Safety Requirements
NONEProcedure
Refer to SPM TASK 70-11-03-300-503.
Use chemical cleaning equipment.
Chemically clean the case assembly.
SUBTASK 72-41-21-110-199 Clean the HP Compressor Stage 11 Case Assembly
Refer to SPM TASK 70-09-01-400-501.
Identify the damaged holes.
SUBTASK 72-41-21-220-516-A00 Examine the Rivet Holes on the HP Compressor Stage 11 Case Assembly, Assembly A
Refer to SPM TASK 70-09-01-400-501.
Identify the damaged holes.
SUBTASK 72-41-21-220-516-B00 Examine the Rivet Holes on the HP Compressor Stage 11 Case Assembly, Assembly B
Refer to SPM TASK 70-09-01-400-501.
Identify the damaged holes.
SUBTASK 72-41-21-220-516-C00 Examine the Rivet Holes on the HP Compressor Stage 11 Case Assembly, Assembly Cand Assembly D
Refer to SPM TASK 70-23-05-230-501.
Use CoMat 06-022 FLUORESCENT PENETRANT (POST-EMULSIFIED ULTRA HIGH SENSITIVITY) with the penetrant crack test equipment.
Do a local penetrant crack test of the drilled holes.
SUBTASK 72-41-21-230-212 Do a Crack test
Refer to SPM TASK 70-39-03-390-501.
Use cold squeezing rivet equipment.
Cold squeeze the rivets.
SUBTASK 72-41-21-390-068-A00 Assemble the Borescope Access Port to the HP Compressor Case Assembly, Assembly A
Refer to SPM TASK 70-39-03-390-501.
Use cold squeezing rivet equipment.
Cold squeeze the rivets.
SUBTASK 72-41-21-390-068-B00 Assemble the Borescope Access Port to the HP Compressor Case Assembly, Assembly B
Refer to SPM TASK 70-39-03-390-501.
Use cold squeezing rivet equipment.
Cold squeeze the rivets.
SUBTASK 72-41-21-390-068-C00 Assemble the Borescope Access Port to the HP Compressor Case Assembly, Assembly C and Assembly D
Refer to SPM TASK 70-23-05-230-501.
Use CoMat 06-022 FLUORESCENT PENETRANT (POST-EMULSIFIED ULTRA HIGH SENSITIVITY) with penetrant crack test equipment.
Cracks are not permitted.
Do a penetrant crack test on the rivets.
SUBTASK 72-41-21-230-213 Do a Crack Test
Refer to SPM TASK 70-39-03-390-501, SUBTASK 70-39--03-390-005.
Use workshop inspection equipment.
Visually examine and measure the dimensions of the assembly.
SUBTASK 72-41-21-220-518-A00 Examine the HP Compressor Stage 11 Case Assembly, Assembly A
Refer to SPM TASK 70-39-03-390-501, SUBTASK 70-39--03-390-005.
Use workshop inspection equipment.
Visually examine and measure the dimensions of the assembly.
SUBTASK 72-41-21-220-518-B00 Examine the HP Compressor Stage 11 Case Assembly, Assembly B
Refer to SPM TASK 70-39-03-390-501, SUBTASK 70-39-03-390-005.
Use workshop inspection equipment.
Visually examine and measure the dimensions of the assembly.
SUBTASK 72-41-21-220-518-C00 Examine the HP Compressor Stage 11 Case Assembly, Assembly C and Assembly D
Refer to SPM TASK 70-09-00-400-501, SUBTASK 70-09-00-400-501.
Use vibro-engraving equipment.
Make a mark VRS6352/1 adjacent to the assembly number when the borescope access port has been replaced.
SUBTASK 72-41-21-350-191 Identify the Repair
Refer to SPM TASK 70-09-01-400-501.
Identify the damaged hole(s).
SUBTASK 72-41-21-220-519-A00 Examine the HP Compressor Stage 11 Case Assembly, Assembly A
Refer to SPM TASK 70-09-01-400-501.
Identify the damaged hole(s).
SUBTASK 72-41-21-220-519-B00 Examine the HP Compressor Stage 11 Case Assembly, Assembly B
Refer to SPM TASK 70-09-01-400-501.
Identify the damaged hole(s).
SUBTASK 72-41-21-220-519-C00 Examine the HP Compressor Stage 11 Case Assembly, Assembly C and Assembly D
Refer to SPM TASK 70-09-01-400-501.
Identify which holes have been drilled for the larger rivets.
SUBTASK 72-41-21-20-051-A00 Examine the Rivet Hole(s), Assembly A
Refer to SPM TASK 70-09-01-400-501.
Identify which holes have been drilled for the larger rivets.
SUBTASK 72-41-21-220-051-B00 Examine the Rivet Hole(s), Assembly B
Refer to SPM TASK 70-09-01-400-501.
Identify which holes have been drilled for the larger rivets.
SUBTASK 72-41-21-220-051-C00 Examine the Rivet Hole(s), Assembly C and Assembly D
Refer to SPM TASK 70-23-05-230-501.
Use CoMat 06-022 FLUORESCENT PENETRANT (POST-EMULSIFIED ULTRA HIGH SENSITIVITY) with penetrant crack test equipment.
Cracks are not permitted.
Do a local penetrant crack test on the rivet hole(s).
SUBTASK 72-41-21-230-214 Do a Crack Test
Refer to SPM TASK 70-39-03-390-501.
Use cold squeeze riveting equipment.
Cold squeeze the rivets.
SUBTASK 72-41-21-390-069-A00 Install the Rivet(s), Assembly A
Refer to SPM TASK 70-39-03-390-501.
Use cold squeeze riveting equipment.
Cold squeeze the rivets.
SUBTASK 72-41-21-390-069-B00 Install the Rivet(s), Assembly B
Refer to SPM TASK 70-39-03-390-501.
Use cold squeeze riveting equipment.
Cold squeeze the rivets.
SUBTASK 72-41-21-390-069-C00 Install the Rivet(s), Assembly C and Assembly D
Refer to SPM TASK 70-23-05-230-501.
Use CoMat 06-022 FLUORESCENT PENETRANT (POST-EMULSIFIED ULTRA HIGH SENSITIVITY) with penetrant crack test equipment.
Cracks are not permitted.
Do a local penetrant crack test on the rivet hole(s).
SUBTASK 72-41-21-230-215 Do a Crack Test
Refer to SPM TASK 70-39-03-390-501, SUBTASK 70-39-03-390-005.
Use workshop inspection equipment.
Visually examine and measure the dimensions of the assembly.
SUBTASK 72-41-21-220-520-A00 Examine the HP Compressor Stage 11 Case Assembly, Assembly A
Refer to SPM TASK 70-39-03-390-501, SUBTASK 70-39-03-390-005.
Use workshop inspection equipment.
Visually examine and measure the dimensions of the assembly.
SUBTASK 72-41-21-2200-520-B00 Examine the HP Compressor Stage 11 Case Assembly, Assembly B
Refer to SPM TASK 70-39-03-390-501, SUBTASK 70-39-03-390-005.
Use workshop inspection equipment.
Visually examine and measure the dimensions of the assembly.
SUBTASK 72-41-21-220-520-C00 Examine the HP Compressor Stage 11 Case Assembly, Assembly C and Assembly D
Refer to SPM TASK 70-09-00-400-501, SUBTASK 70-09-00-400-501.
Use vibro-engraving equipment.
Make a mark VRS6352/2 adjacent to the assembly number when the borescope access port has been replaced.
SUBTASK 72-41-21-350-193 Identify the Repair
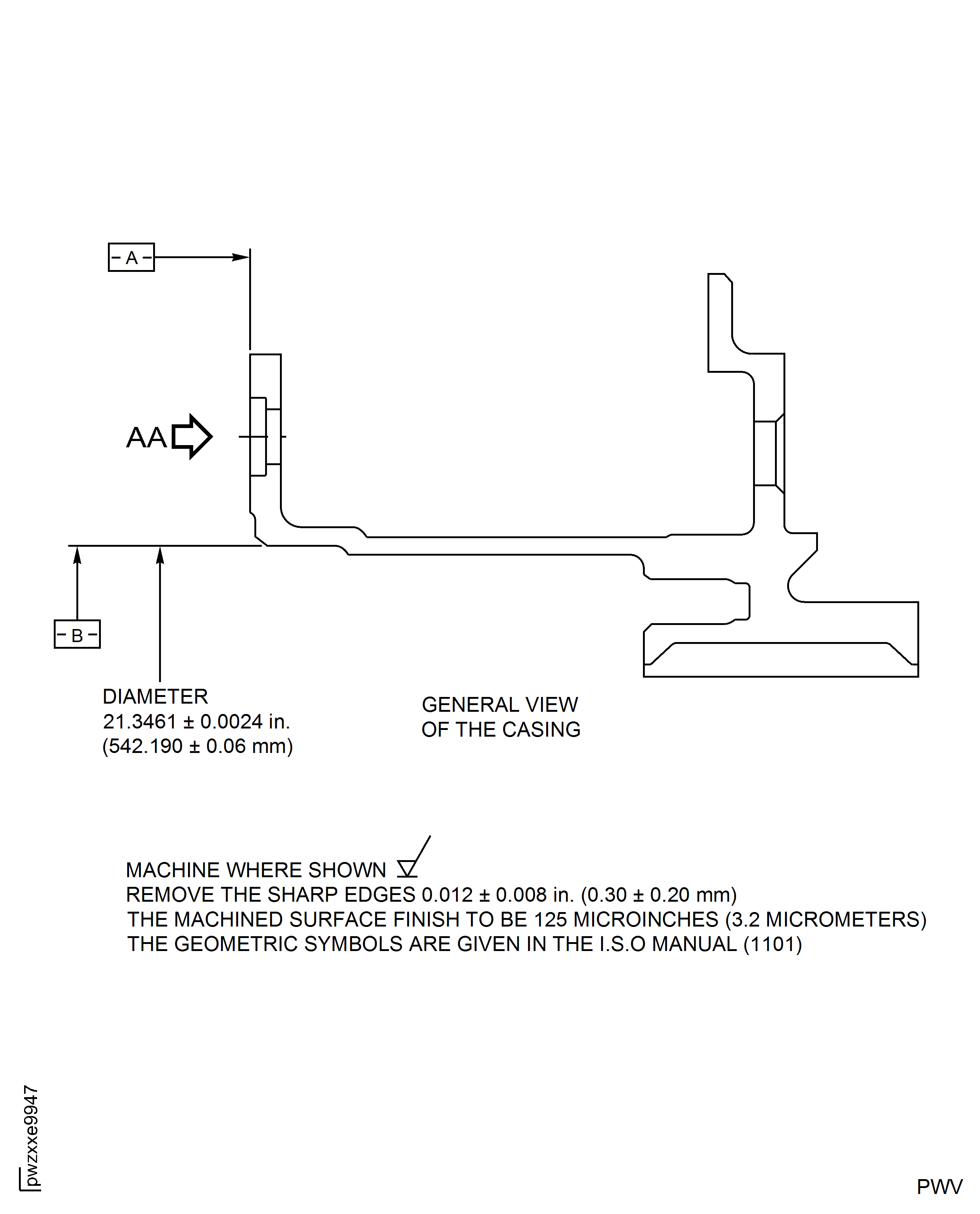
Figure: Repair Details and Dimensions - Assembly A
Repair Details and Dimensions - Assembly A

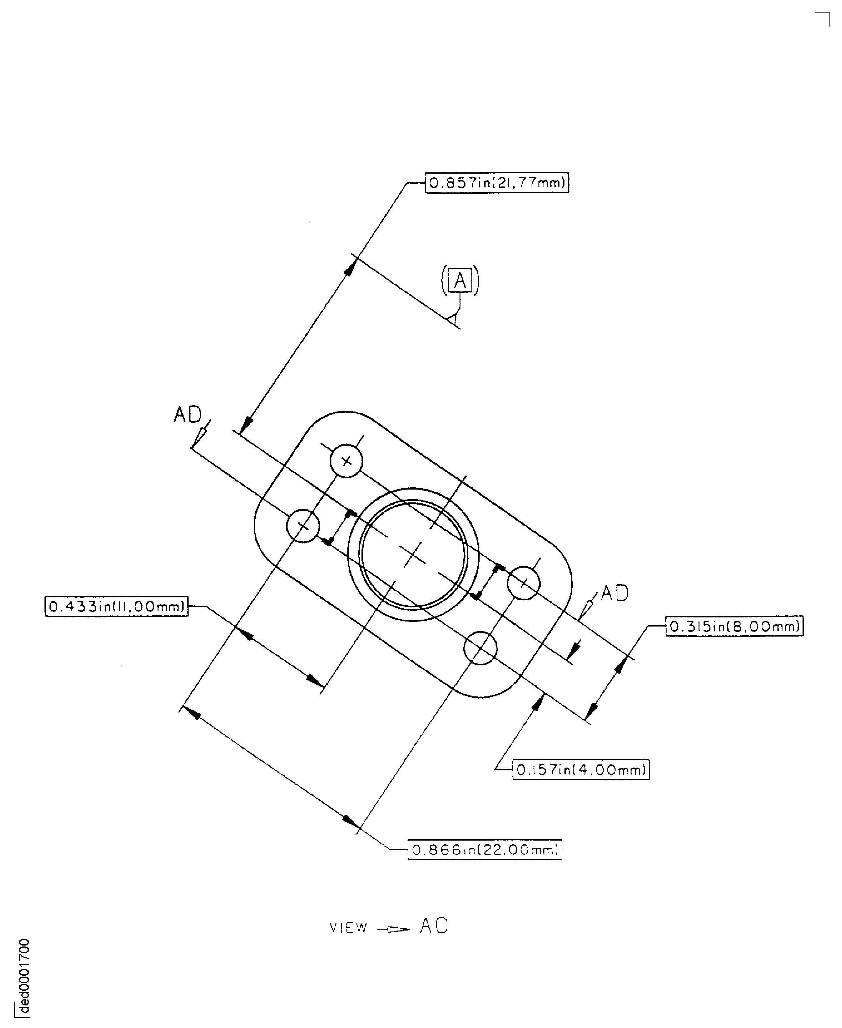
Figure: Repair Details and Dimensions - Assembly B
Repair Details and Dimensions - Assembly B

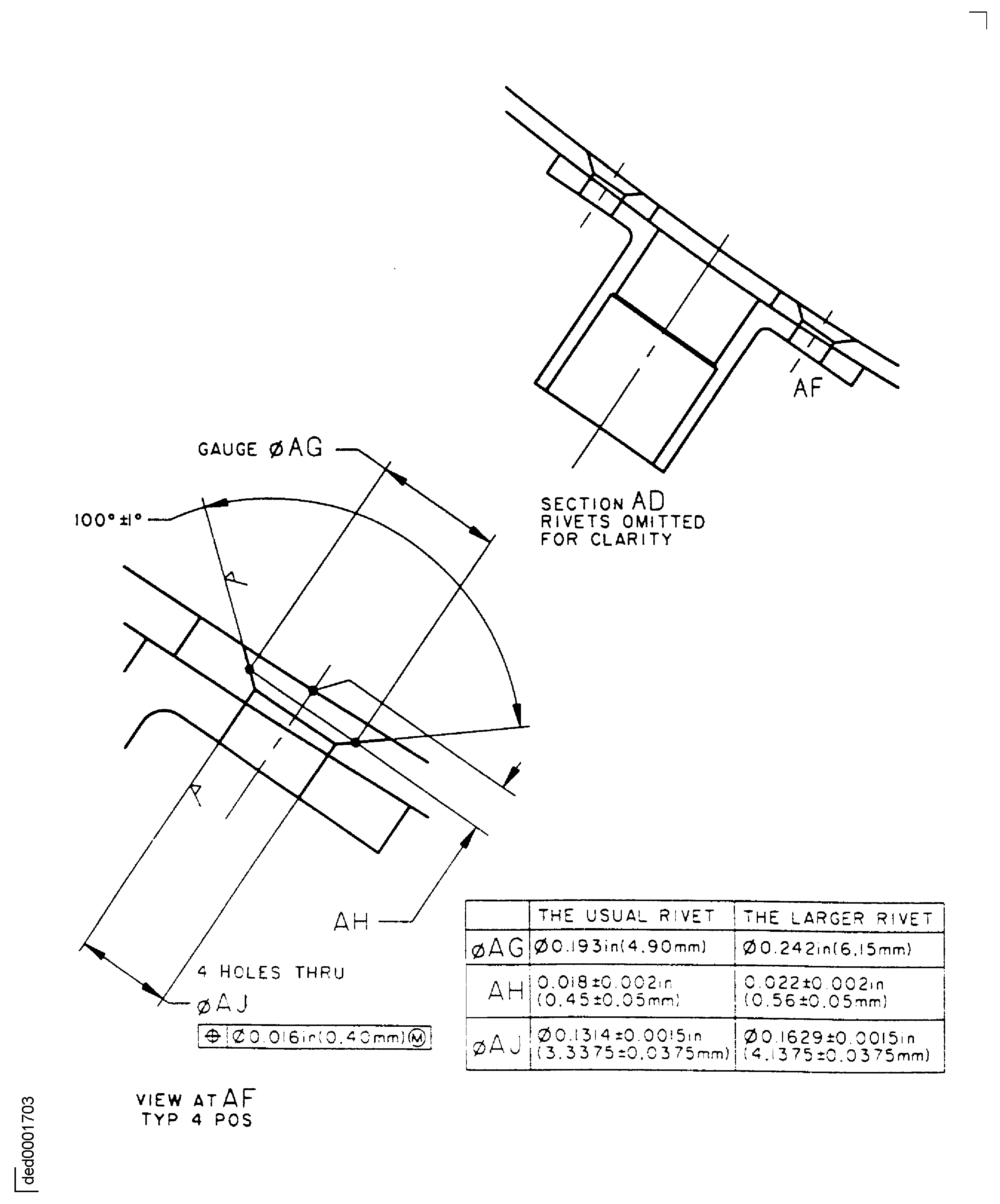
Figure: Repair Details and Dimensions - Assembly C
Repair Details and Dimensions - Assembly C

Figure: Repair Details and Dimensions - Assembly D
Repair Details and Dimensions - Assembly D

Figure: Repair Details and Dimensions - Assembly A, Assembly B and Assembly C
Repair Details and Dimensions - Assembly A, Assembly B and Assembly C

Figure: Repair Details and Dimensions - Assembly D
Repair Details and Dimensions - Assembly D

Figure: Repair Details and Dimensions - Assembly A
Repair Details and Dimensions - Assembly A

Figure: Repair Details and Dimensions - Assembly B
Repair Details and Dimensions - Assembly B

Figure: Repair Details and Dimensions - Assembly C And Assembly D
Repair Details and Dimensions - Assembly C And Assembly D

Figure: Repair Details and Dimensions - Assembly A
Repair Details and Dimensions - Assembly A

Figure: Repair Details and Dimensions - Assembly B, Assembly C and Assembly D
Repair Details and Dimensions - Assembly B, Assembly C and Assembly D

Figure: Repair Details and Dimensions - Assembly A, Assembly B, Assembly C and Assembly D
Repair Details and Dimensions - Assembly A, Assembly B, Assembly C and Assembly D

Figure: Repair Details and Dimensions - Assembly A
Repair Details and Dimensions - Assembly A

Figure: Repair Details and Dimensions - Assembly B and Assembly C
Repair Details and Dimensions - Assembly B and Assembly C

Figure: Repair Details and Dimensions - Assembly D
Repair Details and Dimensions - Assembly D

