Export Control
EAR Export Classification: Not subject to the EAR per 15 C.F.R. Chapter 1, Part 734.3(b)(3), except for the following Service Bulletins which are currently published as EAR Export Classification 9E991: SBE70-0992, SBE72-0483, SBE72-0580, SBE72-0588, SBE72-0640, SBE73-0209, SBE80-0024 and SBE80-0025.Copyright
© IAE International Aero Engines AG (2001, 2014 - 2021) The information contained in this document is the property of © IAE International Aero Engines AG and may not be copied or used for any purpose other than that for which it is supplied without the express written authority of © IAE International Aero Engines AG. (This does not preclude use by engine and aircraft operators for normal instructional, maintenance or overhaul purposes.).Applicability
All
Common Information
TASK 72-42-11-300-033 Diffuser Case - Plasma Spray The Front Inner Flange Front Face, Repair-033 (VRS3753)
Effectivity
FIG/ITEM PART NO. | |
|---|---|
01-010 | 2A0051 |
01-010 | 2A2081-01 |
01-010 | 2A2581-01 |
01-010 | 2A2883-01 |
01-010 | 2A2885-01 |
01-010 | 2A2889-01 |
01-010 | 2A2891-01 |
01-010 | 2A2896-01 |
01-010 | 2A2897-01 |
01-010 | 2A3132 |
General
Price and availability - refer to IAE
The practices and processes referred to in the procedure by the TASK numbers are in the SPM.
Preliminary Requirements
Pre-Conditions
NONESupport Equipment
NONEConsumables, Materials and Expendables
| Name | Manufacturer | Part Number / Identification | Quantity | Remark |
|---|---|---|---|---|
| CoMat 03-080 METAL SPRAYING POWDER,Co BASE ALLOY | IE426 | CoMat 03-080 | ||
| CoMat 03-096 PLASMA SPRAY POWDER | LOCAL | CoMat 03-096 | ||
| CoMat 05-192 ALUMINUM OXIDE GRIT | IE531 | CoMat 05-192 |
Spares
NONESafety Requirements
NONEProcedure
Do the procedure given in the SPM TASK 70-38-24-300-503.
Mask all the areas that are not to be plasma spray coated.
SUBTASK 72-42-11-350-111 Mask All the Areas that are not to be Plasma Spray Coated
Do the procedure given in the SPM TASK 70-34-03-340-501.
Use CoMat 05-192 ALUMINUM OXIDE GRIT. No other grit blast permitted.
Grit blast surface DL.
SUBTASK 72-42-11-380-064 Grit Blast the Front Inner Flange Front Face Surface DL
Do the procedure given in the SPM TASK 70-34-03-340-501.
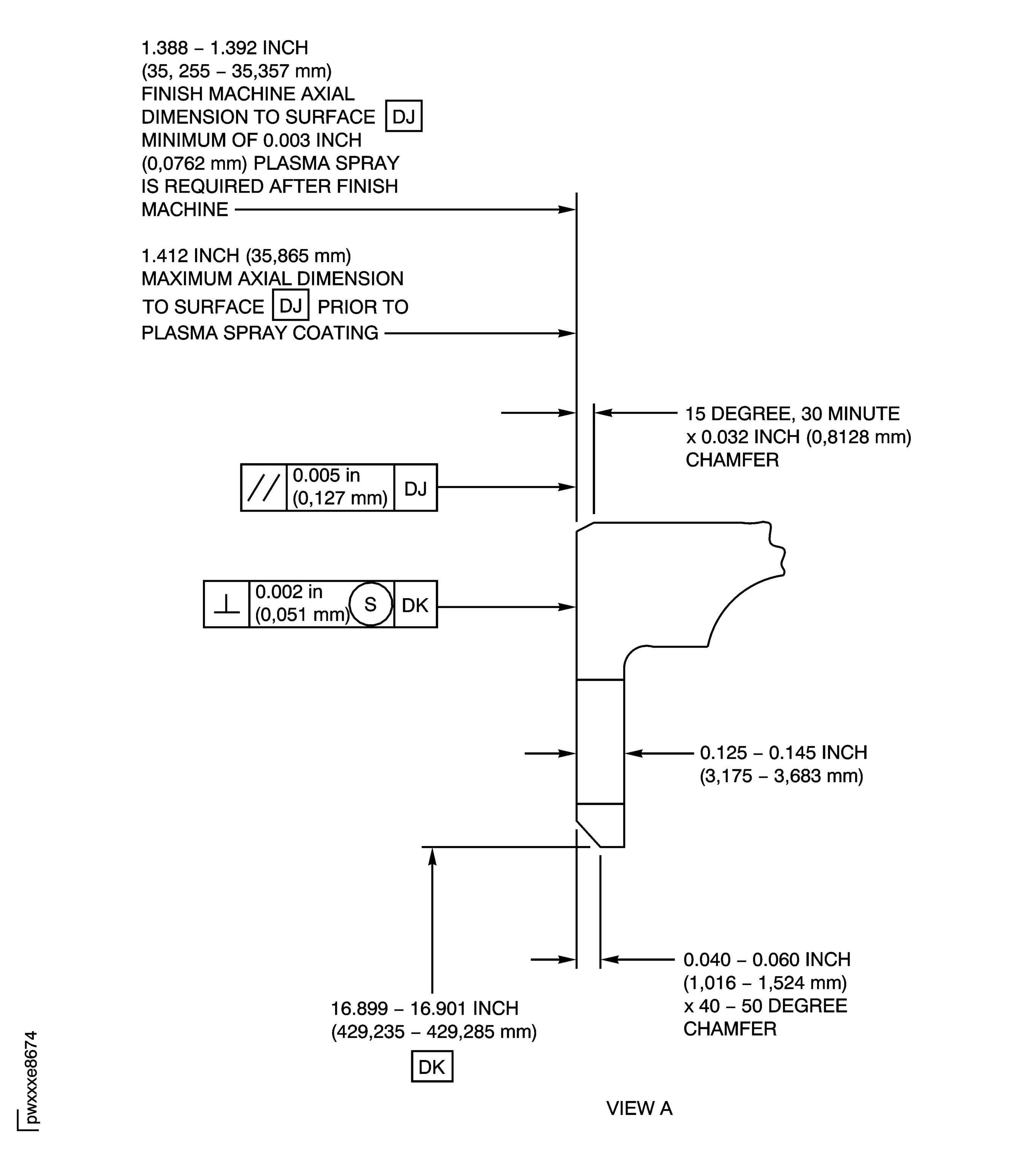
Apply sufficient thickness of coating to get the final machining dimensions given in the figure.
Apply plasma spray coating to surface DL.
SUBTASK 72-42-11-340-062 Apply Plasma Spray Coating to the Front Inner Flange Front Face, Surface DL
All dimensions apply when surfaces DF and DE are flat in 0.005 in. (0.13 mm) and diameters DH and DF maintain a clearance envelope of 25.210 and 28.226 in. (640.33 and 716.94 mm) in a free or held condition.
Held contact is permitted only on surfaces DJ, DX, DE, DY and diameters DH and DF.
In a free condition, surfaces DJ and DE are flat in 0.010 in. (0.25 mm) and diameters DH and DF are between 25.174 and 25.239 in. (639.42 and 641.07 mm) and 28.197 and 28.263 in. (716.20 and 717.88 mm).
Machine the plasma spray coating to the dimensions given in the figure. A minimum of 0.003 in. (0.08 mm) plasma coat is necessary after finish machining.
SUBTASK 72-42-11-320-084 Machine the Front Inner Flange Front Face, Surface DL
Do a visual inspection of the plasma spray coating by the SPM TASK 70-34-03-340-501-001 and SPM TASK 70-34-03-340-501-002.
Examine the front inner flange front face surface DL to the dimensions given in the figure.
SUBTASK 72-42-11-220-103 Examine the Front Inner Flange Front Face, Surface DL
Mark the part by the procedures given in the SPM TASK 70-09-00-400-501.
Use the vibration peen method.
NOTE
If the VRS repair number is marked on the part, do not mark the repair number again.
Mark the repair number VRS3753 on the diffuser case adjacent to the part number.
SUBTASK 72-42-11-350-113 Mark the Part
Refer to TASK 72-42-11-200-001-A00 or TASK 72-42-11-200-001-B00.
Do an inspection of the case to make sure that the case meets the inspection requirements.
SUBTASK 72-42-11-350-114 Examine the Repaired Area
Figure: Repair Details and Dimensions
Sheet 1

Figure: Repair Details and Dimensions
Sheet 2

