Export Control
EAR Export Classification: Not subject to the EAR per 15 C.F.R. Chapter 1, Part 734.3(b)(3), except for the following Service Bulletins which are currently published as EAR Export Classification 9E991: SBE70-0992, SBE72-0483, SBE72-0580, SBE72-0588, SBE72-0640, SBE73-0209, SBE80-0024 and SBE80-0025.Copyright
© IAE International Aero Engines AG (2001, 2014 - 2021) The information contained in this document is the property of © IAE International Aero Engines AG and may not be copied or used for any purpose other than that for which it is supplied without the express written authority of © IAE International Aero Engines AG. (This does not preclude use by engine and aircraft operators for normal instructional, maintenance or overhaul purposes.).Applicability
V2500-A5
Common Information
TASK 72-45-23-200-004-E00 HPT Stage 1 Duct Segment - Examine, Inspection-004
General
This TASK gives the procedure for the inspection of the stage 1 HPT duct segment.
Fig/item numbers in parentheses in the procedure agree with those used in the IPC.
The policy that is necessary for inspection is given in the SPM TASK 70-20-00-200-501.
All the parts must be cleaned before any part is examined. Refer to TASK 72-45-23-100-000 (CLEANING-000).
All parts must be visually examined for damage, corrosion and wear. Any defects that are not identified in the procedure must be referred to IAE.
The procedure for those parts which must have a crack test is given in Step. Do the test before the part is visually examined.
A ** following repair referenced in this inspection indicates that the repair is not yet published in the current revision of the manual and the part must be rejected. Contact IAE for additional information concerning FAA approved repair date.
Do not discard any part until you are sure there are no repairs available. Refer to the instructions in repair before a discarded part is used again or oversize parts are installed.
Parts which should be discarded can be held although no repair is available. The repair of a discarded part could be shown to be necessary at a later date.
All parts must be examined to make sure that all the repairs have been completed satisfactorily.
The practices and processes referred to in the procedure by the TASK numbers are in the SPM.
References
Refer to the SPM for data on these items.
Definitions of Damage, SPM TASK 70-02-02-350-501
Inspection of Parts, SPM TASK 70-20-01-200-501
Some data on these items is contained in this TASK. For more data on these items refer to the SPM.
Methods of Testing for Crack Indications
Chemical Processes
Surface Protection
Preliminary Requirements
Pre-Conditions
NONESupport Equipment
NONEConsumables, Materials and Expendables
NONESpares
NONESafety Requirements
NONEProcedure
Clean the part. Refer to TASK 72-45-23-100-000 (CLEANING-000).
Repair, VRS3780 TASK 72-45-23-300-023 (REPAIR-023).
Base material cracks
Cracks that are 0.060 in. (1.52 mm) or less axially and 0.030 in. (0.76 mm) or less circumferentially are permitted. Refer to Figure. Not more than one crack permitted for each intersegment lug. Cracks in the web material are permitted. Cracks that extend into the web radius and onto the feather seal surface (location 7) are limited to an area that is 0.030 in. (0.76 mm) wide as measured from the web material. See Figure.
Any number of cracks at Location 13 are permitted, provided their length does not exceed 0.050 in. (1.270 mm). See Figure.
Intersegment lug (Location 6) base material cracks
Cracks are permitted in the seal groove (including the groove radii) on the side of the aft attachment hooks (Location 5) and the side of the forward seal surface (Location 12) each end. Indications are permitted to a maximum of 0.050 in. (1.270 mm) circumferentially on the aft hook forward surface. Indications are not permitted on the aft surface of the hook. Indications are permitted to a maximum of 0.080 in. (2.032 mm) circumferentially on the seal surface and aft side of seal surface. Refer to Figure. Cracks in the web material are permitted. Cracks that extend into the web radius and onto the feather seal surface (Location 7) are limited to an area that is 0.030 in. (0.76 mm) wide as measured from the web material. See Figure. This allowance is permitted on each end of the part.
Base material cracks in seal groove (Location 8).
Do the test for cracks on the part this is given below. Examine the metal surfaces at Location 1. Do not examine the ceramic coated areas at Location 3. Look carefully at the inter-segment surfaces, hooks and lugs at Locations 4, 5, 6, 7 and 13. Use the applicable penetrant procedure.
PART IDENT
TASK/SUBTASK
Stage 1 HPT duct segment
Refer to the SPM TASK 70-23-01-230-501 (Dip) or
SUBTASK 72-45-23-230-073 Examine the Stage 1 HPT Duct Segments (01-060) for Cracks
Refer to Figure.
SUBTASK 72-45-23-220-124 Examine the Stage 1 HPT Duct Segment (01-060) for the Seal Groove Width
Hooks (Location 4 and 5), nicks, dents, gouges and similar surface imperfections are permitted to 0.005 in. (0.13 mm) depth, if they are smooth bottomed and not in the fillet radii under the hooks. Outside of the fillet radii and ID surfaces, isolated surface imperfections are permitted to 0.040 in. (1.02 mm) depth, if they are smooth bottomed and no two adjacent hooks are affected. The total affected area on each hook is less than 0.016 sq in. (10.322 sq mm) and no imperfection spans more than 0.100 in. (2.54 mm) circumferentially. For hooks with multiple surface imperfections only one may be greater than 0.005 in. (0.13 mm) depth
Intersegment surfaces (Location 7, two places), nicks, dents, gouges and similar surface imperfections are permitted to 0.005 in. (0.13 mm) depth, if they are smooth bottomed and not in the fillet radii, isolated surface imperfections are permitted to 0.040 in. (1.02 mm) depth, if they are smooth bottomed, the total affected area is less than 0.016 in. (0.406 mm) and no imperfection spans more than 0.100 in. (2.54 mm) axially. For multiple surface imperfections, only one may be greater than 0.005 in. (0.13 mm) deep
All other surfaces, nicks, dents, gouges and similar surface imperfections are permitted to 0.005 in. (0.13 mm) depth, if they are smooth bottomed. Isolated surface imperfections are permitted to 0.040 in. (1.02 mm) depth, if fillet radii, cooling holes are not affected, the imperfection is smooth bottomed and total affected area is less than 0.050 sq in. (32.26 sq mm). All imperfections greater than 0.005 in. (0.13 mm) in depth must be separated by 0.010 in. (0.25 mm) minimum. Imperfections on axial and circumferential faces spanning more than half of the face width are not permitted
Repair, VRS3721 TASK 72-45-23-300-017 (REPAIR-017).
Other than (a), (b), (c) and (d)
Corrosion, dents, erosion, nicks and pits.
Examine the duct segment at Location 1 for corrosion, dents, nicks and pits on all the base metal surfaces.
Repair, VRS3721 TASK 72-45-23-300-017 (REPAIR-017).
Erosion on the edges not more than 0.050 in. (1.27 mm) measured circumferentially and radially from the intersegment edge, along the full axial length
Repair, VRS3780 TASK 72-45-23-300-023 (REPAIR-023).
More than in (a)
Erosion of the intersegment edges.
Examine the duct segment at Location 9 for erosion on the intersegment edges. Refer to Figure.
SUBTASK 72-45-23-220-125 Examine the Stage 1 HPT Duct Segment (01-060) for Corrosion, Dents, Erosion, Nicks and Pits on the Base Metal Surfaces
Repair, VRS3780 TASK 72-45-23-300-023 (REPAIR-023).
Other than (a)
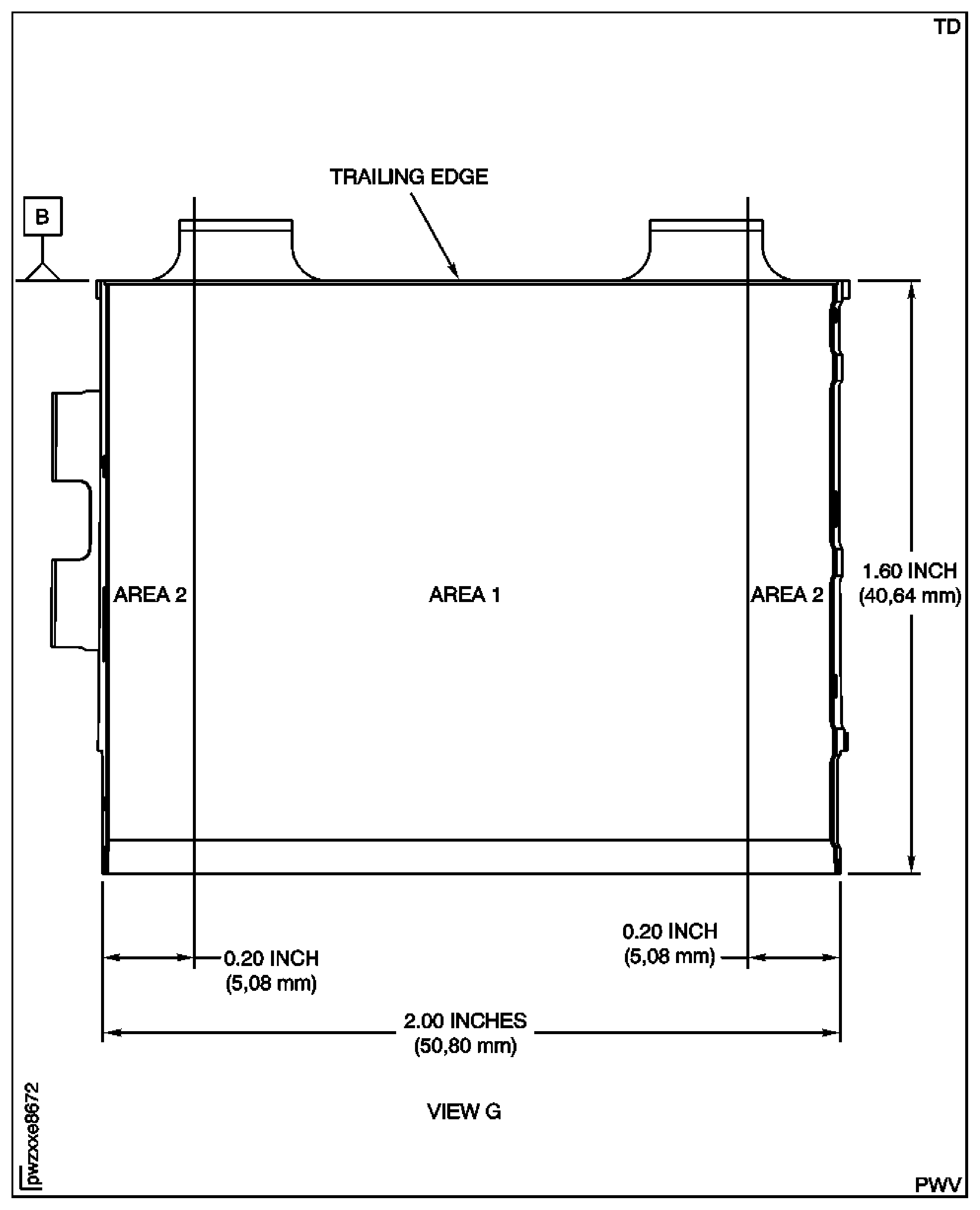
Chips and spalls in Area 2.
Repair, VRS3780 TASK 72-45-23-300-023 (REPAIR-023).
Other than (a)
Chips and spalls in Area 1.
Examine the duct segment assembly at Location 3 for chips and spalls on the ceramic coating in Areas 1 and 2.
SUBTASK 72-45-23-220-126 Examine the Stage 1 HPT Duct Segment (01-060) for Chips and Spalls on the Ceramic Coating
Refer to Figure.
Repair, VRS3543 TASK 72-45-23-300-010 (REPAIR-010) or Repair, VRS3780 (TASK 72-45-23-300-023 (REPAIR-023).
Metal transfer at Location 3
Repair, VRS3780 TASK 72-45-23-300-023 (REPAIR-023).
All axial and circumferential cracks that are horizontal to the top surface at Location 3
Examine the duct segment assembly for metal transfer and cracks.
Repair, VRS3780 TASK 72-45-23-300-023 (REPAIR-023).
Other than (a)
Erosion and rub.
Examine the duct segment for erosion and rub at Location 3.
Not full machining of the ceramic coat in Area 2 on parts that are coated again by Repair, VRS3780 TASK 72-45-23-300-023 (REPAIR-023).
SUBTASK 72-45-23-220-128 Examine the Stage 1 HPT Duct Segment (01-060) for Metal Transfer, Cracks, Erosion and Rub on the Ceramic Coating
Figure: Stage 1 HPT Duct Segment Inspection Locations
Stage 1 HPT Duct Segment Inspection Locations

Figure: Stage 1 HPT Duct Segment Inspection Locations
Sheet 2

Figure: Stage 1 HPT Duct Segment Inspection Locations
Sheet 3

Figure: Stage 1 HPT Duct Segment Inspection Locations
Sheet 4

Figure: Stage 1 HPT Duct Segment Inspection Locations
Stage 1 HPT Duct Segment Inspection Locations

Figure: Stage 1 HPT Duct Segment Inspection Locations
Stage 1 HPT Duct Segment Inspection Locations

Figure: Stage 1 HPT Duct Segment Inspection Locations
Stage 1 HPT Duct Segment Inspection Locations

