Export Control
EAR Export Classification: Not subject to the EAR per 15 C.F.R. Chapter 1, Part 734.3(b)(3), except for the following Service Bulletins which are currently published as EAR Export Classification 9E991: SBE70-0992, SBE72-0483, SBE72-0580, SBE72-0588, SBE72-0640, SBE73-0209, SBE80-0024 and SBE80-0025.Copyright
© IAE International Aero Engines AG (2001, 2014 - 2021) The information contained in this document is the property of © IAE International Aero Engines AG and may not be copied or used for any purpose other than that for which it is supplied without the express written authority of © IAE International Aero Engines AG. (This does not preclude use by engine and aircraft operators for normal instructional, maintenance or overhaul purposes.).Applicability
V2500-A1
Common Information
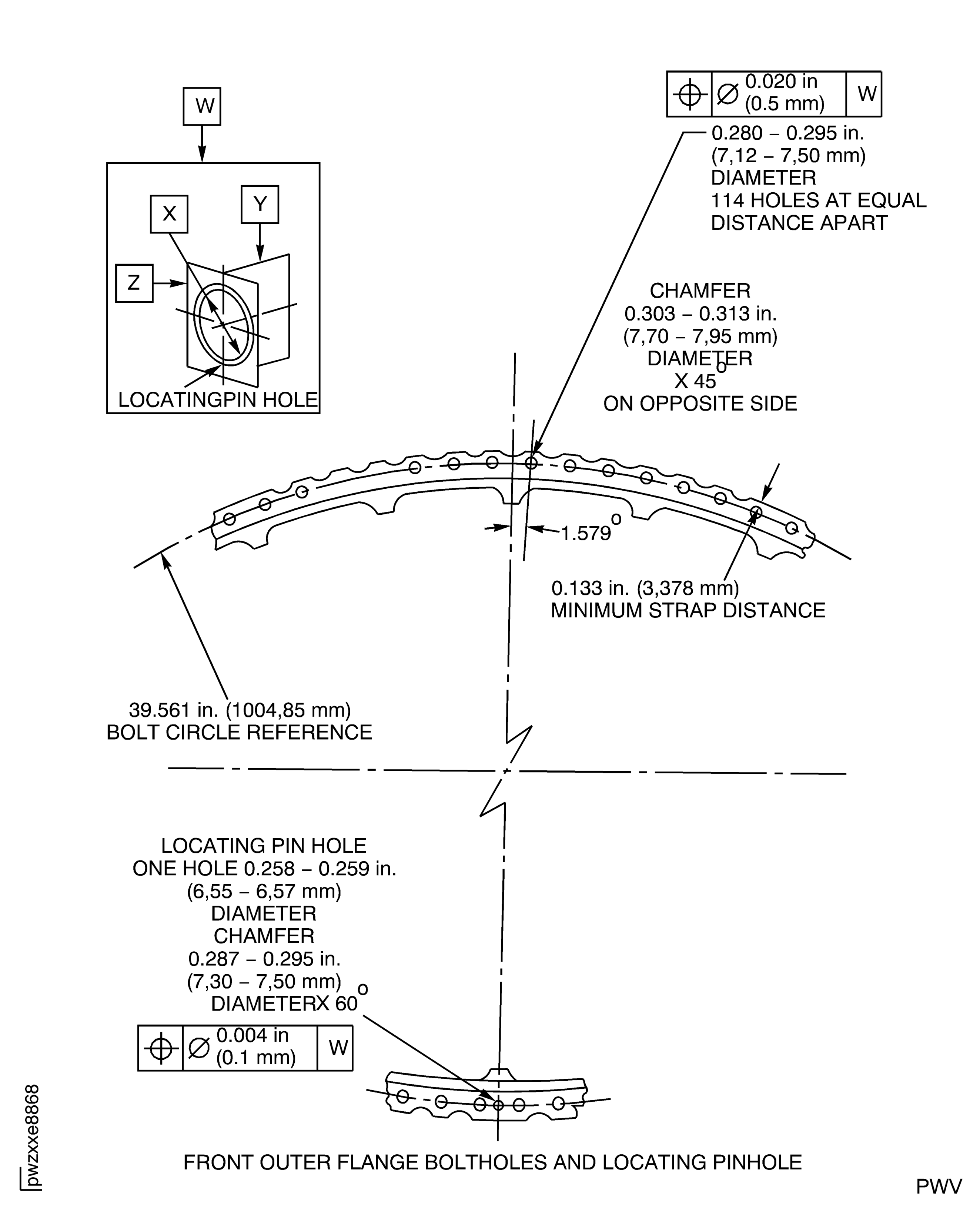
TASK 72-50-53-300-087 Turbine Exhaust Case (TEC) - Weld Repair A Damaged Front Outer Flange Boltholes And Locating Pinhole, Repair-087 (VRS3804)
Material of component
PART IDENT | SYMBOL | MATERIAL |
|---|---|---|
Turbine Exhaust Case | - | Corrosion and heat resistant steel |
General
NOTE
To identify the consumable materials refer to the PCI.
Other consumable materials are given in the SPM.
Preliminary Requirements
Pre-Conditions
NONESupport Equipment
NONEConsumables, Materials and Expendables
| Name | Manufacturer | Part Number / Identification | Quantity | Remark |
|---|---|---|---|---|
| CoMat 03-378 WELDING WIRE | LOCAL | CoMat 03-378 | ||
| CoMat 06-064 FLUORESCENT PENETRANT (WATER WASHABLE MEDIUM SENSITIVITY) | LOCAL | CoMat 06-064 |
Spares
NONESafety Requirements
NONEProcedure
Refer to the SPM TASK 70-11-26-300-503.
Clean the surfaces to be welded fully and the adjacent heat effected area.
SUBTASK 72-50-53-110-189 Clean the Areas to be Welded
Refer to the SPM TASK 70-23-02-230-501.
Use CoMat 06-064 FLUORESCENT PENETRANT (WATER WASHABLE MEDIUM SENSITIVITY) (Water-washable medium sensitivity).
No cracks are permitted.
Do a fluorescent penetrant inspection of the turbine exhaust case.
SUBTASK 72-50-53-230-145 Fluorescent Penetrant Inspection of the Full Turbine Exhaust Case
Refer to Figure.
SUBTASK 72-50-53-310-087 Weld the Damaged Front Outer Flange Boltholes and/or Locating Pinhole
Refer to Figure.
SUBTASK 72-50-53-320-176 Do a Machine Operation of the Weld Area
Repair, VRS3522 TASK 72-50-53-300-073 (REPAIR-073), SUBTASK 72-50-53-370-078-002.
If this procedure was not done before, remove all the externals, oil tubes, helicoils and nut plate details.
SUBTASK 72-50-53-370-104 Remove all the Externals and Oil Tubes
Refer to the SPM TASK 70-37-13-370-501, Cycle 6A.
Do a stress-relief of the turbine exhaust case in an oven.
SUBTASK 72-50-53-370-105 Do a Stress-Relief of the Turbine Exhaust Case (Oven)
Refer to Figure.
SUBTASK 72-50-53-320-122 Finish Weld Areas
Refer to the SPM TASK 70-23-02-230-501.
Use CoMat 06-064 FLUORESCENT PENETRANT (WATER WASHABLE MEDIUM SENSITIVITY) (Water-washable medium sensitivity).
No cracks are permitted.
Do a fluorescent penetrant inspection of full turbine exhaust case.
SUBTASK 72-50-53-230-146 Fluorescent Penetrant Inspection of the Full Turbine Exhaust Case
Refer to Figure.
Refer to the SPM TASK 70-11-26-300-503.
Remove the remaining tape by solvent wipe procedure.
SUBTASK 72-50-53-110-190 Remove the Masks
Refer to Figure.
Refer to TASK 72-50-53-200-003-A00 (INSPECTION/CHECK-003, CONFIG-001).
Do a dimensional inspection of the turbine exhaust case.
SUBTASK 72-50-53-220-269 Do a Dimensional Inspection of the Turbine Exhaust Case
Figure: Repair Details and Dimensions
Repair Details and Dimensions

